215 N Rampart St.

A New Orleans Hostel

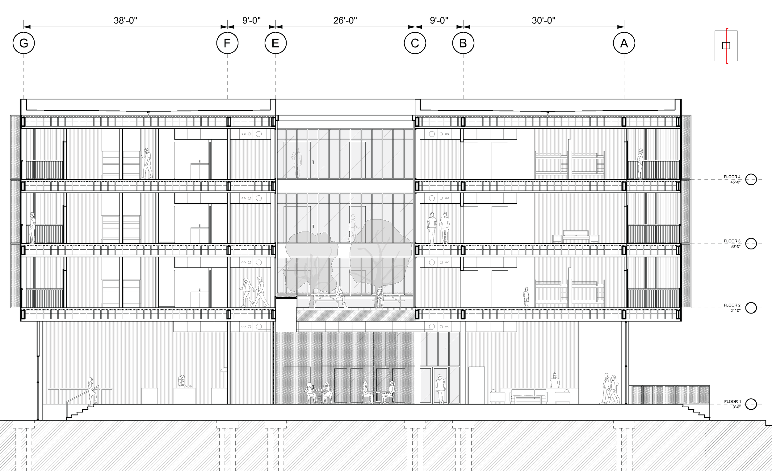
This boutique hostel proposal integrates building systems, structure, and historic context to create a welcoming place for travelers at the edge of the French Quarter in Tremé. Inspired by New Orleans housing typologies, the design incorporates raised front porches, balconies, and shotgun-style room layouts, giving each unit a personal balcony and operable louver screens for privacy and light control.

A public ground floor includes a lobby, café, guest kitchen, laundry, offices, and a skylit media room, with an adjacent rain garden offering outdoor gathering space. Upper-level rooms face the surrounding streets and gather around a small courtyard and light well. Mechanical and structural systems were integral to the design, including a variable refrigerant flow system for efficient, zone-specific cooling and a durable steel frame suited to New Orleans’ climate.

Integrated Studio, 2023

Previous
Previous

Los Angeles Youth Center

Next
Next

Data Driven Environmental Conditioners